
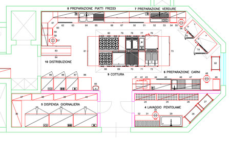
Nella progettazione di un ristorante, quella del locale cucina costituisce la componente più importante, in grado di condizionare anche i costi di gestione, fattore che per la limitazione della disponibilità di spazi obbliga a scegliere soluzioni nelle quali si deve studiare di sposare il rispetto delle normative relative alla destinazione d’uso con il rispetto delle normative che i regolamenti di igiene stabiliscono per le varie zone. Non ultima poi, va considerata la massima operatività dei processi produttivi riflessa nell'operato degli addetti attraverso la giusta scelta dei macchinari.

L'installazione (consegna e montaggio), nonchè coordinamento dei lavori di allacciamento idraulico ed elettrico vengono effettuati nel rispetto del progetto esecutivo per garantire la perfetta funzionalità e sicurezza di tutto l'impianto.
Il collaudo è eseguito con attenzione scrupolosa ai parametri indicati dalle ditte costruttrici, dedicando tutto il tempo necessario per istruire il personale di cucina ad un corretto uso ed alla periodica pulizia e manutenzione delle macchine.

Il nostro ufficio assistenza fornisce supporto tecnico diretto, con personale interno specializzato, interventi tempestivi e di qualità.
I nostri tecnici, preparati e formati, sono costantemente aggiornati alle nuove tecnologie. Offriamo quindi un'assistenza Post vendita precisa e puntuale. Copriamo l’intero paese avvalendoci, al di fuori del territorio campano, di una rete di centri di assistenza tecnica specializzati, già cooperanti con le catene di fastfood estere con le quali siamo in sinergia.. Tutto ciò coordinato da professionalità, organizzazione, efficienza e cordialità.
T.A.I.M. Srl - Sede legale ed Operativa Via Emilio G. Turco, 26 - 83100 Avellino (AV) - Tel. & Fax +39 0825.463275 -
E-mail info@taimsrl-avellino.it - Pec taim_srl@pec.it - P. Iva 02963030644 - REA AV 195541 -